Share:
Description
Available from: 1 July 2026
- All Inclusive Bills Option
- 4 Double bedrooms
- Large dining kitchen
- Tradional high ceilings
- 10 Minutes walk to UOL
4 bed student property *** Off London Road *** Virtual Tour Available *** All Inclusive Bills Option ***
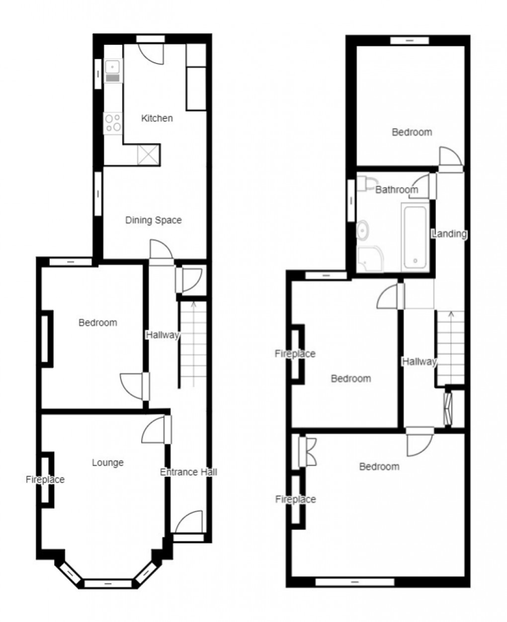
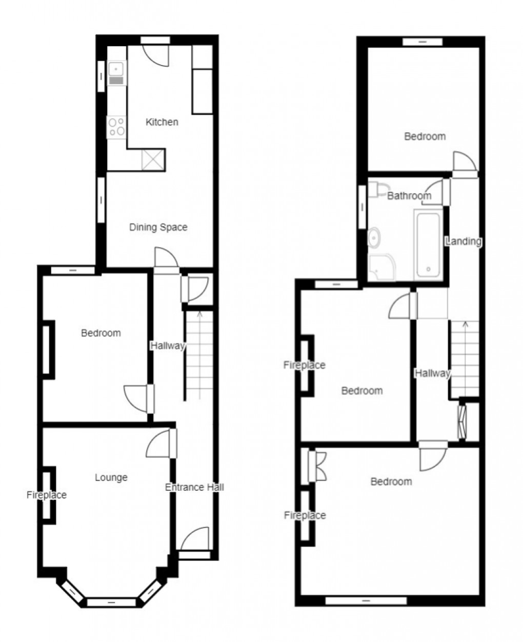
A great 4 bedroom student house located 10 minutes walk from the University of Leicester.4 bedroom student house;
All bedrooms come with double bed, desk, chair, wardrobe & chest of drawers
Gas central heating with modern "combi" boiler
Modern fitted kitchen with dining table and chairs
Shower room with separate shower cubicle & white suite
Spacious lounge with black leather sofas & coffee table
Modern, neutral decor across whole property
Modern furniture throughout
Low-maintenance rear yard
Tenancy start date:
1st July
Tenancy Term:
12 months
Rent:
All rent is paid via Standing Order on 1st of each month
Half rent is charged for the period 1st July - 31st August (Paid in one installment on 1st August)
Deposit:
£300.00 per person
All deposits that are held by Livingstone for managed properties are protected by The TDS under current legislation
Key Collection:
Keys will only be released / collected from 1st September
No access is given for the period 1st July - 31st August
Floorplan
EPC
To discuss this property call:
Market your property
with Livingstone Property
Book a market appraisal for your property today. Our virtual options are still available if you prefer.
