Share:
Description
Available from: 1 July 2026
4 bed student property *** Clarendon Park *** Virtual Tour Available *** All Inclusive Bills Option ***
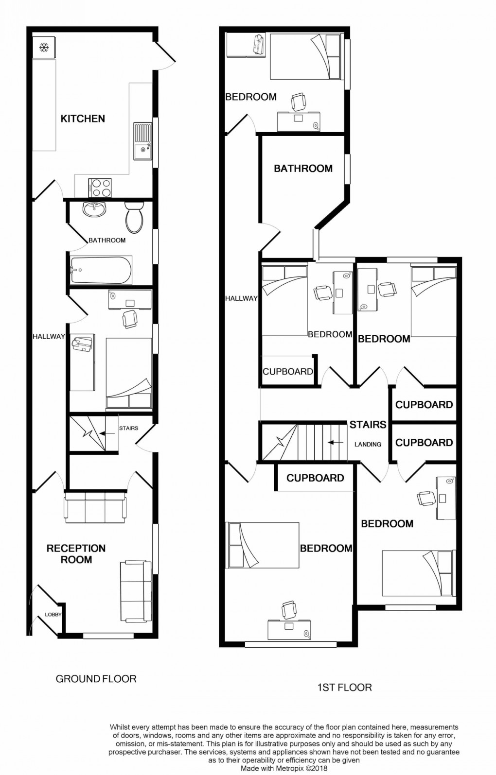
A modern, well-proportioned student house in a top location in Clarendon Park. The property benefits from having 2 full bathrooms, a fitted kitchen with appliances & 4 great fully furnished double bedrooms.4 bedroom student house;
Fully furnished property, all rooms come with double beds and built in wardrobes;
Modern uPVC double glazing in much of the property;
Gas central heating with modern "combi" boiler;
Modern fitted kitchen with freestanding cooker, fridge-freezer & washing machine;
Spacious lounge with black leather sofas & coffee table
Modern, neutral decor across whole property
2 large bathrooms with showers, hand basins and toilet
Low-maintenance rear yard
Only 15 minutes walk from uni.
Floorplan
EPC
To discuss this property call:
Market your property
with Livingstone Property
Book a market appraisal for your property today. Our virtual options are still available if you prefer.
