Share:
Description
Available from: 1 July 2026
- All Inclusive Bills Option
- 3 Double bedrooms
- 2 Shower rooms
- Extened Kitchen
- 10 Minutes walk to UOL
3 bed student property *** Clarendon Park *** Virtual Tour Available *** All Inclusive Bills Option ***
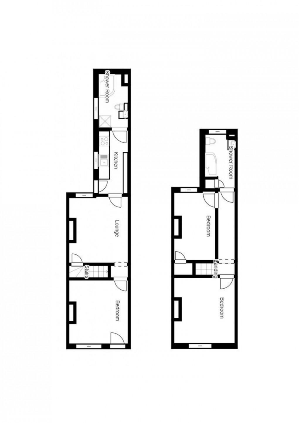
A mid-terraced 3 bedroom student property with 2 shower rooms, located in the heart of Clarendon Park3 bedroom student property;
A well presented, flush fronted mid-terraced house
All bedrooms are furnished with, double bed, desk, chair & clothes storage
Modern kitchen, supplied with gas hob, electric oven, fridge freezer & washing machine
Ground floor shower room with large walk-in shower
Reception room with leather sofas
1st floor shower room with large shower cubicle, wash hand basin and toilet
Neutral decor and floor coverings throughout
Double glazed windows and gas central heating
Great location for the University of Leicester & Queens Road
Tenancy start date:
1st July
Tenancy Term:
12 months
Rent:
All rent is paid via Standing Order on 1st of each month
Half rent is charged for the period 1st July - 31st August (Paid in one installment on 1st August)
Deposit:
£300.00 per person
All deposits that are held by Livingstone for managed properties are protected by The TDS under current legislation
Key Collection:
Keys will only be released / collected from 1st September
No access is given for the period 1st July - 31st August
Floorplan
EPC
To discuss this property call:
Market your property
with Livingstone Property
Book a market appraisal for your property today. Our virtual options are still available if you prefer.
