Share:
Description
Available from: 1 July 2026
- All Inclusive Bills Option
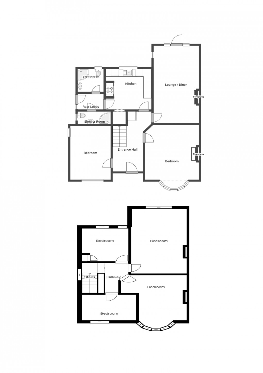
- 6 Double bedrooms
- 2 Shower rooms
- Off road parking
- 5 Minutes walk to UOL
6 bed student property *** Clarendon Park *** Virtual Tour Available *** All Inclusive Bills Option ***
An outstanding 6 bedroom student property located in the heart of Clarendon Park.6 bedroom student house;
Fully furnished property
Gas-fired central heating system
Fully double glazed
Kitchen with integrated oven & hob, fridge-freezer & washer/dryer
2 bathrooms/shower rooms
Off-road parking
Lawned rear garden
Only 5 minutes walk from uni
Tenancy start date:
1st July
Tenancy Term:
12 months
Rent:
All rent is paid via Standing Order on 1st of each month
Half rent is charged for the period 1st July - 31st August (Paid in one installment on 1st August)
Deposit:
£300.00 per person
All deposits that are held by Livingstone for managed properties are protected by The TDS under current legislation
Key Collection:
Keys will only be released / collected from 1st September
No access is given for the period 1st July - 31st August
Floorplan
EPC

To discuss this property call:
Market your property
with Livingstone Property
Book a market appraisal for your property today. Our virtual options are still available if you prefer.